Leave a Message

Thank you for your message. We will be in touch with you shortly.

Explore Our Properties

Property Description

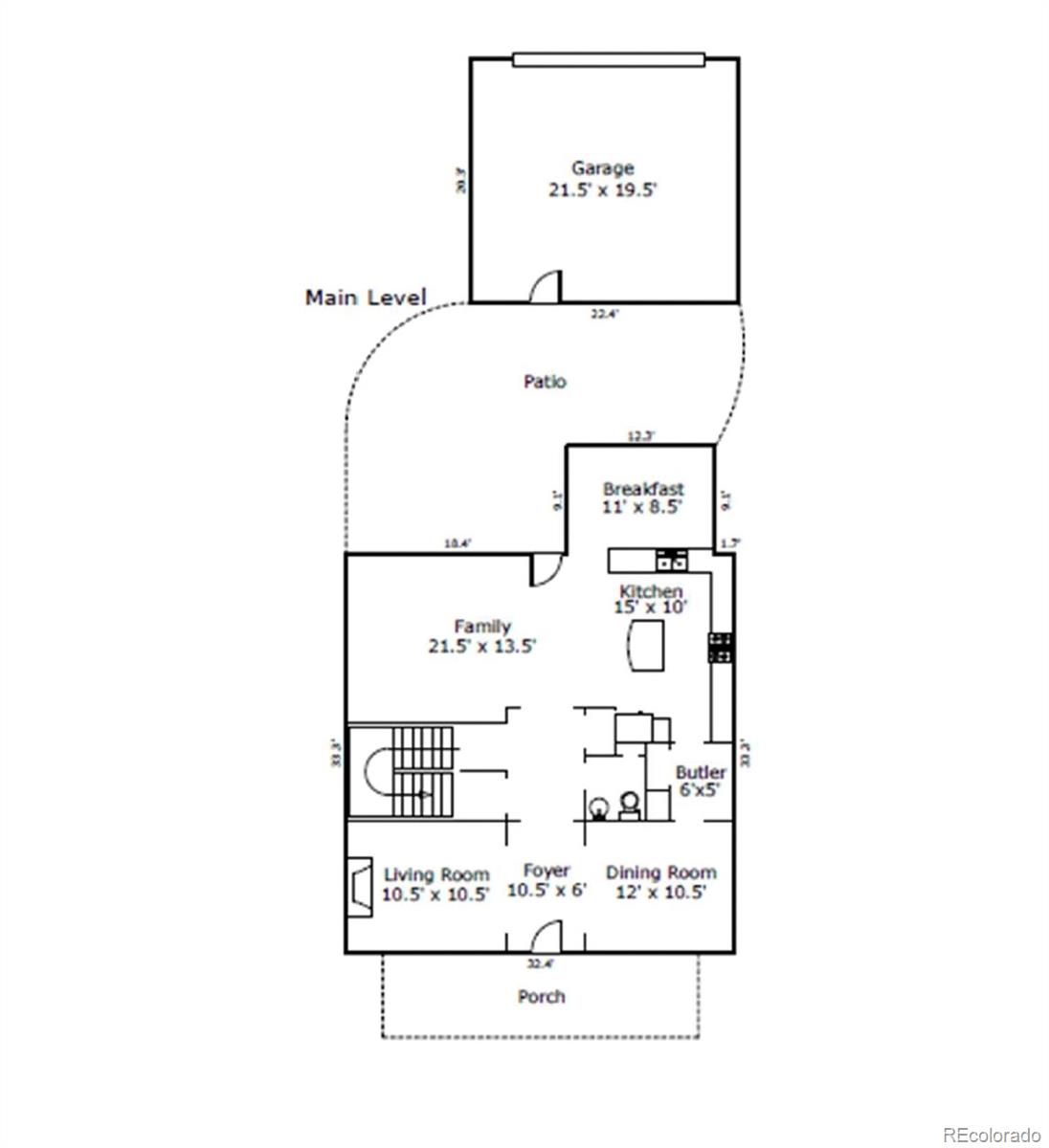
This classic Oxford model by Parkwood Homes is ideally located in Central Park's coveted Eastbridge neighborhood, just down the street from Stanley Marketplace, one block to the Westerly Creek trail, and less than a mile to the Eastbridge Town Center. The welcoming front porch is a signature feature of the Parkwood design, a cozy outdoor lounge perfect for sipping coffee and chatting with neighbors. When you step inside, your eyes will be drawn through the elegant archways to the picturesque backyard, where mature trees and lush landscaping provide a serene retreat for relaxation and entertainment - but don't head back just yet! Off the foyer to the left is a formal sitting room anchored by a fireplace and built-in shelving, an ideal spot for quiet conversation. To the right is the formal dining room with ample space for dinner parties and holiday celebrations. The kitchen features painted cabinetry, double ovens, granite countertops, a large island, a breakfast nook - AND a butler's pantry with a built-in desk for the household manager and a deep pantry closet for that Costco haul. The kitchen overlooks the family room - and this open area is where you're likely to spend the majority of your time, chatting around the island, prepping meals, watching the Buffs on TV, working at the breakfast table, connecting with family and friends. On the 2nd floor you'll find the primary suite, a spacious room with an equally spacious walk-in closet, plus a five-piece bath and a private balcony with a treehouse vibe. Two additional bedrooms, a laundry room with storage cabinets, and a full bath round out the 2nd floor. The 3rd floor is an adaptable space that can serve as a 4th bedroom, guest suite, playroom, or home office, and includes a full bath for added convenience. The finished basement offers an expansive living area with a dry bar, and a storage room with plenty of workspace for all your messy hobbies. The sellers are offering a $25K CONCESSION for a 2-1 rate buydown.

Overview

Property Status
Sold
Lot Size
4,500 Sq.Ft.
MLS ID
4509520
Property Type
Residential
Year Built
2004

Features & Amenities

Neighborhood
Central Park
Architecture Styles
Traditional
Stories
3
Garage Spaces
2.0
Water Source
Public
Utilites
Electricity Connected, Natural Gas Connected
Roof
Composition
Lot Features
Level, Near Public Transit, Sprinklers In Front, Sprinklers In Rear
Parking
Floor Coating
Heat Type
Forced Air
Air Conditioning
Central Air
Laundry Room
In Unit
Fireplace
Living Room
Appliances
Bar Fridge, Cooktop, Dishwasher, Disposal, Double Oven, Dryer, Microwave, Refrigerator, Sump Pump, Washer
Other Interior Features
Ceiling Fan(s), Eat-in Kitchen, Entrance Foyer, Granite Counters, High Ceilings, Kitchen Island, Open Floorplan
Sewer
Public Sewer
HOA Amenities
Park, Pool
Security Features
Carbon Monoxide Detector(s), Smoke Detector(s)
Other Exterior Features
Balcony, Private Yard
Elementary School
Swigert International
Middle School
DSST: Conservatory Green
High School
Northfield
School District
Denver 1
Sales Price
$1,200,000
Real Estate Tax
$8,688/yr
HOA
$46/mo
Zoning
R-MU-20

Downloads

2781 Clinton Way

Schedule a Tour

We would love to help you see this beautiful home! As a full-service brokerage, we can help you tour. Please submit an offer, and answer questions about the buying process.

Thank you

for your interest in 2781 Clinton Way, Denver, CO 80238

2781 Clinton Way
Navigate
Central Park

Explore Central Park

An award-winning community in Denver, offering parks, shopping, trails, and easy access to the airport.

read more

I'm Interested In

2781 Clinton Way

or
  • CallLaura Hudgins

    License #100041055

    (720) 480-9692
  • Where Denver Living Begins

    Explore Our Listings

    Find your perfect home from stylish city lofts to quiet suburbs with the New Perspective Team.

    • 4347 N Crowfoot Valley Road For Sale

      $3,000,000

      4347 N Crowfoot Valley Road, Castle Rock, CO 80108

      • 5 Beds
      • 6 Baths
      • 6,735 Sq.Ft.
    • 5525 E 17th Avenue Parkway For Sale

      $2,395,000

      5525 E 17th Avenue Parkway, Denver, CO 80220

      • 5 Beds
      • 4 Baths
      • 4,862 Sq.Ft.
    • 2525 S Jackson Street For Sale

      $1,695,000

      2525 S Jackson Street, Denver, CO 80210

      • 5 Beds
      • 3 Baths
      • 3,528 Sq.Ft.
    • 6082 Chester Street For Sale

      $1,285,000

      6082 Chester Street, Denver, CO 80238

      • 4 Beds
      • 4 Baths
      • 3,787 Sq.Ft.
    • 3095 Crabapple Road Active Under Contract

      $1,225,000

      3095 Crabapple Road, Golden, CO 80401

      • 4 Beds
      • 3 Baths
      • 3,355 Sq.Ft.
    • 2346 Fairfax Street Coming Soon

      $1,200,000

      2346 Fairfax Street, Denver, CO 80207

      • 3 Beds
      • 3 Baths
      • 2,412 Sq.Ft.
    • 257 Cajetan Street Active Under Contract

      $725,000

      257 Cajetan Street, Fort Collins, CO 80524

      • 4 Beds
      • 5 Baths
      • 2,808 Sq.Ft.
    • 2630 S Iris Street For Sale

      $659,000

      2630 S Iris Street, Lakewood, CO 80227

      • 3 Beds
      • 4 Baths
      • 2,860 Sq.Ft.
    • 16881 W 63rd Place Active Under Contract

      $625,000

      16881 W 63rd Place, Arvada, CO 80403

      • 3 Beds
      • 4 Baths
      • 2,841 Sq.Ft.
    • 2835 W Parkside Place Unit: 305 Active Under Contract

      $260,000

      2835 W Parkside Place Unit: 305, Denver, CO 80221

      • 1 Bed
      • 1 Bath
      • 631 Sq.Ft.
    View All Properties

    Follow Us On Instagram